曼城CBD最后两套 华庭悦城江景(Affinity Living Riverview)
华庭悦城江景公寓位于战略性门户地段,连接曼彻斯特核心区和索尔福德一一价值10亿英镑的BBC 新大楼的所在地。距离曼城公共交通及金融枢纽斯宾尼菲尔德仅0.3公里,购物与文化体验设施也十 分便利。


基本资料:
地址:M3 5AA
产权:250年
在售单元:两房
装修:精装交房
价格:约297~350万(人民币)
交房时间:预计2021年第4季度
地理位置:步行2分钟到曼城CBD

项目优势:
位于曼城市中心地段,旁边是曼城的五星级酒店Lowry Hotel;
到曼城的核心金融CBD Spinningfields步行3分钟, 步行到核心购物区8分钟;
曼彻斯特市中心的地标性建筑之一,将重新定义曼城市中心的天际线;
首付20%,尾款交房时支付,前期占用的现金流少。符合资质客户可申请贷款;
特殊方式:纯投资不贷款客户可以选择两年包租,每年6%的税前净租金回报率,可委托我们开发商全权管理。
项目设施:
项目配套:7*24小时前台接待,健身房,共享办公空间和公共区域驻地休息室
周边配套:曼彻斯特大学,曼彻斯特城市大学,曼联主场,Spinningfields 核心CBD,曼彻斯特大教堂,核心购物中心,曼彻斯特足球博物馆,曼彻斯特竞技场


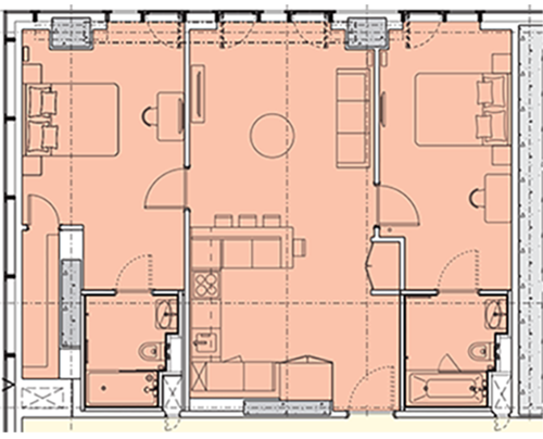
ALRV-M03 ,类似国内的2楼,户型两房;面积:851.42平方英尺 ,约80平米的套内面积;总价:GBP33,9543.00
特点:户型非常方正,进门是客厅餐厅,两个房间都是套房,分在两边,是明星户型,极为适合分组给2个租客。其次虽然 楼层较低,但是属于边角物业,且前方没有建筑物,采光没有遮挡。
跟公寓的健身房等公共设施位于同一层,既有健身娱乐比较方便的好处,但同时会可能人流较多。

户型细节:


ALRV-108 两房 ,位于英国的一层,相当于国内的3楼;面积:847.12平方英尺,相当于79平米套内面积;总价:GBP337,977.00
特点:户型非常方正,进门是客厅餐厅,两个房间都是套房,分在两边,是明星户型,极为适合分组给2个租客,其次虽然楼层较低,但是属于边角物业,且前方没有建筑物,采光没有遮挡。

户型细节:


两房效果图:











